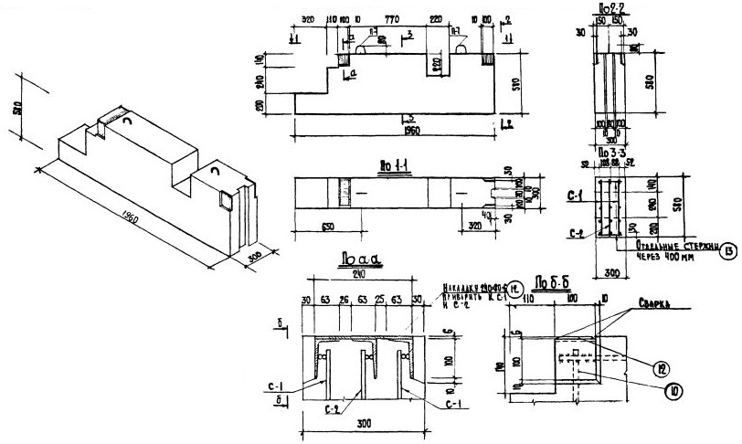
ВБ-20.6.3

Чертеж изделия:
Чертеж ВБ-20.6.3
Характеристики изделия:
ПараметрЗначение
Длина1960 мм
Ширина300 мм
Высота580 мм
Масса682 кг
Нормативный документСерия 1.134-1

ВБ-20.6.3   Блоки внутренних поперечных стен горизонтальные по Серии 1.134-1.